Pronájem bytu 2+KK 60 m²
Praha, Milánská
při podepsaní smlouvy hradí se vratná kauce 30000kč











Popis
Poznámka k ceně: 23500 Kč/měs + náklady na bydlení 5500.-Kč.
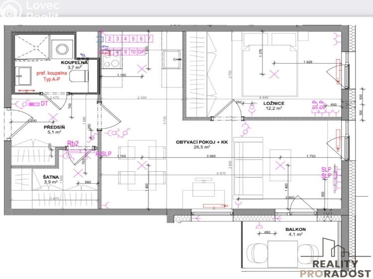
Pronájem bytu 2+kk, Milánská, Horní Měcholupy, 60m²
K dlouhodobému podnájmu Vám nový byt 2kk s výměrou 60m² a samostatnou sklepní kójí a parkovacím stáním.
Byt se nachází ve 2. patře novostavby cihlového domu s výtahem, okna krásně těsní a izoluji venkovní hluk tak že v bytě je velmi ticho.
Skládá se ze vstupní chodby z vestavěnou skříni, toalety s koupelnou zařízené sprchovým koutem, umyvadlem a přípojkou na pračku.
Dále je šatna, ložnice a obývací pokoj společný s kuchyňským koutem.
Obývací pokoj je ze vstupem na balkón.
Všechna okna jsou opatřena předokenními žaluziemi. Dveře na balkon jsou zajištěna zámkem na klič a venkovními žaluziemi na dálkové ovládání.
Kuchyně je zařízena spotřebiči - myčka, varná deska, digestoř a trouba.
Byt můžete zařídit plně podle svých představ a potřeb.
Byt je k dispozici k dlouhodobému nastěhování.
Zálohové platby neobsahují zálohy na elektřinu a pojištění domácnosti. Pronajímající si vyhrazuje právo vybrat nájemce na základě jím zvolených kritérií.
Prohlídky jsou možné po domluvě na těl 773230260
Další parametry
- vodovod
- 2
- silnice, mhd, bus
- asfaltová
- 2
- veřejná kanalizace
- č. 264/2020 Sb.
- 230V
- 4 m2
- 4 m2
- 2
- Novostavba
- Cihla
- A - Mimořádně úsporná
- osobní