Prodej bytu 3+KK 71 m²
Praha, Na výběžku

9 500 000 za nemovitost

vč. kompletních služeb RK

Kontakt:Michal Kopejtko E-mail:Telefon:602 752 973
Kliknutím souhlasíte s našimi

Popis

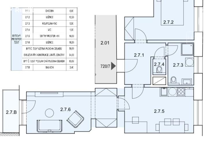
Nabízíme k prodeji byt 3+KK s plochou přes 67 m2 s balkonem v 2.NP novostavby kolaudované v roce 2024 – jedná se o krásné bydlení nebo také skvělou investici s klidné části Prahy 9 - Vysočan

Ideálně řešená dispozice a plocha bytu je účelně rozdělena do jednotlivých místností, kde nechybí hned 2 ložnice s vlastní lodžií či obývací pokoj s plně vybavenou kuchyňskou linkou vč. spotřebičů. V koupelně naleznete dostatek místa pro pračku a sušičku, sprchový kout, WC a bidet a k dispozici je také další oddělená toaleta. Orientace oken na východ a západ dodávají bytu dostatečný přísun denního světla.

V suterénu domu budete mít i zabezpečenou sklepní kóji, kam lze umístit sezónní věci.

Již při první prohlídce zjistíte, že se na provedení rozhodně nešetřilo. Celý dům byl dokončen ve vysokém standardu a ať se svým pohledem při prohlídce zaměříte na dům celkově nebo na detaily bytu samotného, zjistíte, že si developer opravdu dal záležet.

Výhodou této lokality je velmi snadná dostupnost všech služeb, metro 3 minuty od domu a zcela jistě oceníte i možnost parkovat přímo před domem bez nutnosti investice do parkovacího stání. Existuje jen málo míst, kde tuto kombinaci v Praze naleznete.

Díky dispozičnímu řešení je tento byt vhodnější především pro mladé páry, popřípadě rodinu nevyžadující zrovna obrovský obývací pokoj. Detaily naleznete v přiloženém půdorysu.

Přijďte se podívat sami na svůj nový domov. Budu se těšit na viděnou.

Lokalita

Další parametry

  • vodovod
  • ústřední dálkové
  • vlak, dálnice, silnice, mhd, bus
  • internet
  • 2
  • 3 m2
  • plynovod
  • veřejná kanalizace
  • 5
  • č. 264/2020 Sb.
  • 3 m2
  • 158 m2
  • 3 m2
  • 3
  • Novostavba
  • Cihla
  • C - Úsporná
  • osobní
Na tomto webu zpracováváme cookies potřebné pro jeho fungování a analytiku.

Upozornění

Používáte nepodporovaný (zastaralý) internetový prohlížeč!

Pro správný běh našeho portalu není možné použít vámi používaný prohlížeč.

Použijte prosím Microsoft Edge nebo některý z jiných prohlížečů, např. Google Chrome, Firefox.