Prodej bytu 4+KK 90 m²
Praha, Na výběžku
vč. kompletních služeb RK



























Popis
Právě dokončený developerský projekt THE TRIANGLE v klidné ulici Kolmá, v Praze 9 – Vysočany, nabízí velmi kvalitní bydlení splňující nejnáročnější požadavky dnešní doby.
Mimořádně zdařilá stavba pod taktovkou zkušeného developera Vás velmi mile překvapí komorním, avšak luxusním zpracováním a italským designem.
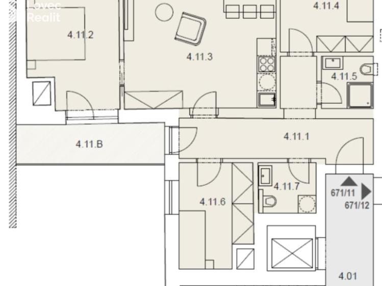
K prodeji byt 4+KK 83,5m2 s klidnou lodžií 7m2 do vnitrobloku (celková užitná plocha tedy 90,5m2), umístěný v 4.NP. K bytu patří sklep v suterénu domu o užitné ploše 3,2m2. Orientace oken jak na JZ, tak také SV. Velmi dobře a účelně řešený byt (půdorys přiložen v nabídce mezi fotodokumentací)
Zachován shodný vysoký standard a tedy naleznete zde mimo jiné kvalitní italskou kuchyňskou linku včetně značkových spotřebičů, kde nechybí varná deska, trouba, integrovaná myčka či velká lednice s mrazákem. Koupelny jsou vybaveny značkovou sanitou HANSGROHE a FERBEX a velkoformátovou dlažbou a obklady. Pokoje oddělují světlé interiérové dveře, doplněné o kvalitní kování. Podlahy či obklady ve stejném designu dodávají bytům ucelený luxusní vzhled. Kvalitní velkoformátová okna pak zaručují v kombinaci s orientací bytů dostatek denního světla. Nechybí ani bezpečnostní dveře nejvyšší kvality, videotelefon pro dálkové otevření návštěvám a o tepelný komfort se stará plynová kotelna v suterénu domu s prostorovým termostatem SIEMENS v bytě (zde si můžete pohodlně ovládat teplotu ve Vaší jednotce)
Tento projekt se skutečně povedl. Velmi zdařilé zpracování, skvělá adresa, občanská vybavenost, snadná dostupnost služeb či MHD, sportovněrelaxační vyžití v okolí a v neposlední řadě žádaná lokalita Prahy 9 je zárukou nejen kvalitního bydlení, ale i případné dobré investice do nemovitosti.
Možno bez problémů financovat hypotečním úvěrem, který Vám velmi rádi a zdarma vyřídíme u Vaší banky a to za nejlepších podmínek na trhu.
Zavolejte mi nebo napište a uvidíme se na prohlídce. Budu se těšit na viděnou!
Další parametry
- vodovod
- 2
- 7 m2
- veřejná kanalizace
- 5
- č. 264/2020 Sb.
- 3 m2
- 4
- Novostavba
- Cihla
- C - Úsporná
- osobní