Prodej rodinného domu 136 m², pozemek 155 m²
Praha, Sukovská





























Popis
- Tento popis je v:
Prodej dvoupodlažního, zděného a architektonicky elegantně řešeného rodinného domu (2019) 4+kk s terasou a garáží (136 m), nacházejícího se na slunném pozemku o velikosti 164 m v atraktivní rezidenční lokalitě Praha 4 Újezd u Průhonic. Dům je součástí moderního uzavřeného komplexu řadových domů Milíčovský les, který spojuje klidné rodinné bydlení s výbornou dostupností do centra Prahy. Stanice metra Opatov je vzdálena 5 minut jízdy, do centra se dostanete za 15 minut. V těsné blízkosti se nachází Milíčovský les, cyklostezky, rybníky a veškerá občanská vybavenost.
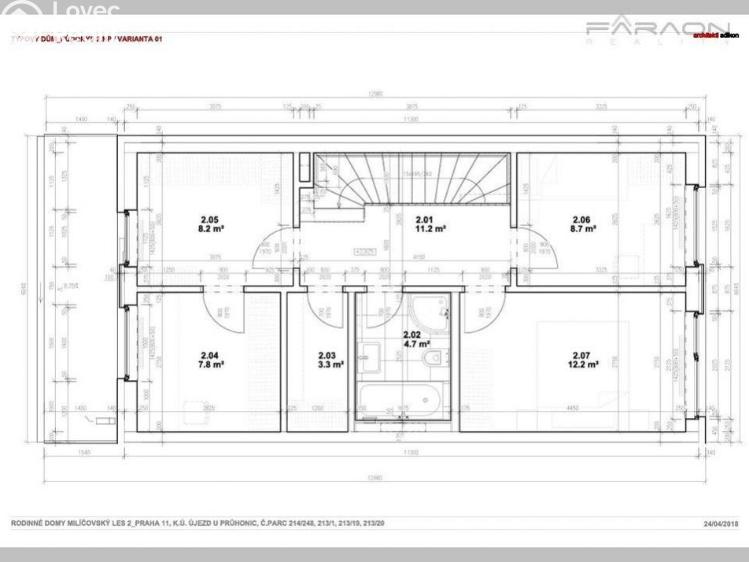
Dispozice domu 4+kk zahrnuje dvě nadzemní podlaží. V přízemí se nachází prostorný obývací pokoj s jídelnou a přímým vstupem na terasu, plně vybavená kuchyň v lesklém béžovém designu se spotřebiči AEG a Miele, samostatná toaleta, technické zázemí s prostorem pro pračku a sušičku a vstup do garáže. V patře jsou tři pokoje prostorná ložnice s vestavěnou skříní, pracovna/studentský pokoj s nábytkem na míru a dětský pokoj nebo pokoj pro hosty. Dále prostorná koupelna se sprchovým koutem, toaletou a samostatná šatna.
Nemovitost je ve vynikajícím technickém stavu a prodává se tak, jak je prezentována na fotografiích včetně veškerého vybavení a nábytku z fotodokumentace. Součástí standardu jsou venkovní elektrické žaluzie na všech oknech, plastová okna s izolačními trojskly, plynový kotel, kvalitní laminátové podlahy v dekoru dřeva, velkoformátové obklady a dlažby a sanita značek Laufen a Grohe. K dispozici je prostorná garáž a dvě parkovací stání před domem.
Zahrada je ponechána k finálnímu dokončení dle představ budoucího majitele, přičemž vizualizace ilustrují její možnou podobu a plný potenciál.
Rezidenční areál nabízí dětské hřiště a dostatek parkovacích míst pro rezidenty i návštěvy. Lokalita představuje ideální rovnováhu mezi městským komfortem a klidným rodinným životem v přírodě. V blízkosti se nachází mateřská a základní škola Formanská, zdravotní středisko, sportovní areály i nákupní centra Westfield Chodov a OC Opatovská. Milíčovský les tak nabízí klidné, bezpečné a moderní bydlení s veškerým komfortem života v Praze.
116m2 podlahová plocha + 20m2 terasa
ID nemovitosti HMA2038-0001.
Dispozice domu 4+kk zahrnuje dvě nadzemní podlaží. V přízemí se nachází prostorný obývací pokoj s jídelnou a přímým vstupem na terasu, plně vybavená kuchyň v lesklém béžovém designu se spotřebiči AEG a Miele, samostatná toaleta, technické zázemí s prostorem pro pračku a sušičku a vstup do garáže. V patře jsou tři pokoje prostorná ložnice s vestavěnou skříní, pracovna/studentský pokoj s nábytkem na míru a dětský pokoj nebo pokoj pro hosty. Dále prostorná koupelna se sprchovým koutem, toaletou a samostatná šatna.
Nemovitost je ve vynikajícím technickém stavu a prodává se tak, jak je prezentována na fotografiích včetně veškerého vybavení a nábytku z fotodokumentace. Součástí standardu jsou venkovní elektrické žaluzie na všech oknech, plastová okna s izolačními trojskly, plynový kotel, kvalitní laminátové podlahy v dekoru dřeva, velkoformátové obklady a dlažby a sanita značek Laufen a Grohe. K dispozici je prostorná garáž a dvě parkovací stání před domem.
Zahrada je ponechána k finálnímu dokončení dle představ budoucího majitele, přičemž vizualizace ilustrují její možnou podobu a plný potenciál.
Rezidenční areál nabízí dětské hřiště a dostatek parkovacích míst pro rezidenty i návštěvy. Lokalita představuje ideální rovnováhu mezi městským komfortem a klidným rodinným životem v přírodě. V blízkosti se nachází mateřská a základní škola Formanská, zdravotní středisko, sportovní areály i nákupní centra Westfield Chodov a OC Opatovská. Milíčovský les tak nabízí klidné, bezpečné a moderní bydlení s veškerým komfortem života v Praze.
116m2 podlahová plocha + 20m2 terasa
ID nemovitosti HMA2038-0001.
Další parametry
- 1
- lokální plynové
- 2
- 135 m2
- 155 m2
- Velmi dobrý
- Cihla
- C - Úsporná
Na tomto webu zpracováváme cookies potřebné pro jeho fungování a analytiku.