Prodej rodinného domu 470 m², pozemek 1814 m²
Stradonice

12 998 000 za nemovitost
Kontakt:Karel Fiala E-mail:Telefon:775 226 622
Kliknutím souhlasíte s našimi

Popis

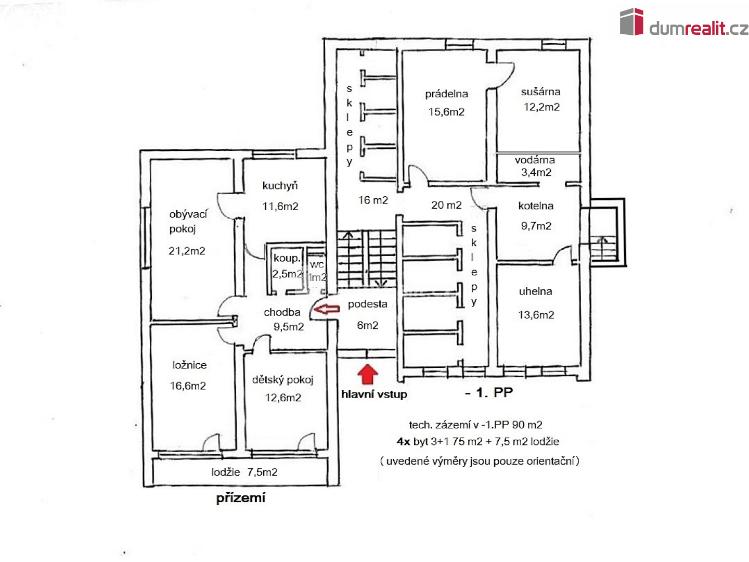
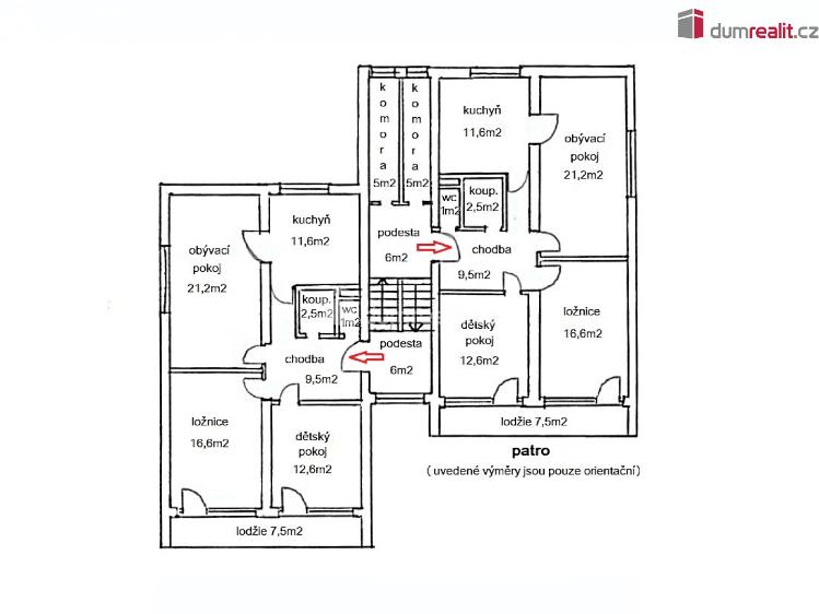
Ve výhradním zastoupení majitele Vám nabízím bytový dům o čtyřech bytových jednotkách s celkovou plochou 470 m² na pozemku 1.814 m² v obci Stradonice u Slaného, jen 30min po D7 na metro B Zličín – ideální místo pro velkou rodinu, zázemí firmy a podnikání, nebo developera.

Bytový dům (betonový skelet vyplněný cihlami) byl dokončen v r. 1980 a po úpravách kolaudován v r. 1993. Obsahuje tech. zázemí cca 90 m² v -1.PP a 4 stejné byty 3+1 o výměře 75 m² + 7,5 m² lodžie. V domě je dostatek úložných prostor, v -1.PP jsou sklepy, k praktickému využití prádelna a sušárna a u každého bytu je na chodbě úložná komora. Vytápění zajišťuje automatický kotel na uhlí (EURO 5) + el.kotel napojený na radiátory, pro ohřev teplé vody má každý byt el. bojler. Voda je do domu přivedena přes vodárnu ze studny a odpad do jímky, ale v letošním roce je v obci plánováno připojení na obecní vodovod a kanalizaci, realizace nyní probíhá, základní příprava pro napojení u domu je hotová. Dům je plně funkční, před 8 lety byly udělány nové rozvody topení v mědi, jinak je v původním stavu, který si zaslouží rekonstrukci.

Před domem je velká zpevněná plocha na parkování a 3 garáže, za nimi na druhé příjezdové cestě k domu lze pohodlně parkovat kamión s návěsem. Na pěkné zahradě (1.417 m²) jsou za domem 4 zděné úložné kůlny a dostatek prostoru k zahradničení, zábavě a odpočinku.

Bytový dům se včetně zahrady prodává jako celek, jednotlivé byty nejsou na katastrálním úřadu vymezené (zapsané), proto si je může nový majitel vymezit prohlášením vlastníka dle svého uvážení.

V klidné obci je útulná hospůdka u které se v létě konají akce pro děti a venkovní taneční zábavy, dvě nová dětská hřiště, zastávka autobusu do Slaného, veškerá další občanská vybavenost jako mateřské a základní školy, lékaři, velké obchody a vlaková stanice (do Kralup nad Vltavou a Loun) se nachází v blízké sousední obci Zlonice a Klobouky.

Jednoduchá cesta autem do Prahy po D6, D7 i D8 kolem 30 min na metro, do 10 min dojezd do Slaného.
Dobrá investiční příležitost k podnikání i k vícegeneračnímu bydlení pro velkou rodinu.
S vaší hypotékou pomůžeme – zařídíme. Doporučuji. Ev. číslo: 649762.

Další parametry

  • 2
  • 4
  • 2
  • 254 m2
  • 1814 m2
  • Dobrý
  • Smíšená
  • G - Mimořádně nehospodárná
Na tomto webu zpracováváme cookies potřebné pro jeho fungování a analytiku.

Upozornění

Používáte nepodporovaný (zastaralý) internetový prohlížeč!

Pro správný běh našeho portalu není možné použít vámi používaný prohlížeč.

Použijte prosím Microsoft Edge nebo některý z jiných prohlížečů, např. Google Chrome, Firefox.