Prodej obchodního prostoru 84 m²
Olomouc
včetně právních služeb a provize RK
















Popis
Prodej atraktivního nebytového prostoru - ideální pro Vaše podnikání.
Máte podnikatelský záměr a hledáte vhodné místo v Olomouci? Pak nepřehlédněte tuto výjimečnou nabídku!
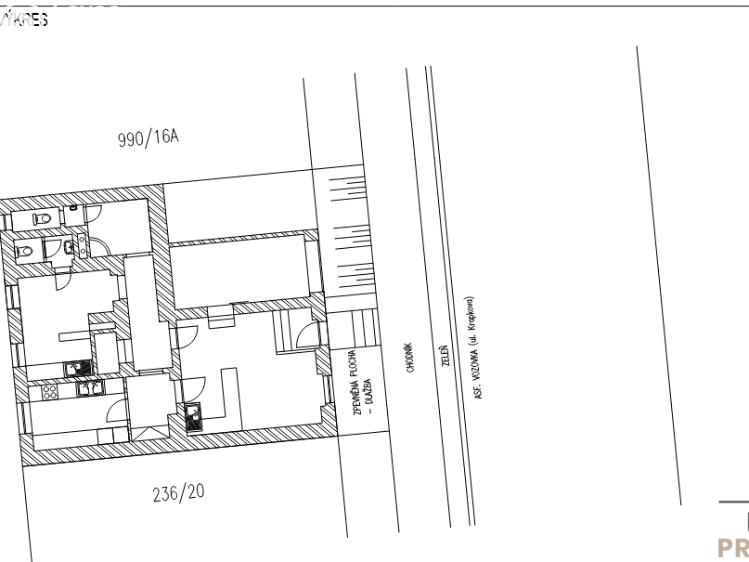
Nabízíme k prodeji nebytový prostor o výměře 84 m², nacházející se v suterénu udržovaného činžovního domu v atraktivní lokalitě v Olomouci – ulice Krapkova, jen pár minut chůze od centra města a v těsné blízkosti Smetanových sadů.
Tento prostor má široké možnosti využití – v minulosti zde fungovala kavárna - cukrárna nebo testovací krevní centrum. Díky svému členění, přístupu z ulice a dobré dostupnosti se skvěle hodí pro širokou škálu podnikání – kavárna, bistro, obchod, kosmetické či masážní studio, showroom, kancelář, výdejna e-shopu nebo třeba ateliér.
Co Vám tento prostor nabízí?
✅ Skvělá lokalita – klidná, ale zároveň velmi frekventovaná oblast s výbornou dostupností
✅ Skvělá dopravní dostupnost - blízkost MHD
✅ Pěší dosah do centra města i parků
✅ Zavedené okolí – sousedství oblíbené pivnice zajišťuje stabilní pohyb lidí v lokalitě
✅ Připraveno k úpravám dle Vašich potřeb
✅ Vlastní sociální zázemí – oddělené WC, místnost pro zázemí personálu či sklad
✅ Výloha do ulice
✅ Osobní vlastnictví - vhodné i jako investice (možnost pronájmu)
Technické parametry:
- Užitná plocha: 84 m²
- 4 místnosti
- 2 x WC, sprchový kout
- Umístění: suterén
- Stav: dobrý / před úpravami dle nového využití
- Vytápění: vlastním plynovým kotlem
- Vodovod, elektřina - vlastní měřiče
Pokud hledáte prostor pro své podnikání, který kombinuje výbornou polohu, dostupnost a příznivou cenu, tato nabídka rozhodně stojí za prohlídku.
Další parametry
- vodovod
- plynový kotel
- 1
- Ne
- 84 m2
- 1
- plynovod
- veřejná kanalizace
- 4
- č. 264/2020 Sb.
- 230V
- -1
- Dobrý
- Smíšená
- G - Mimořádně nehospodárná