Prodej bytu 4+1 150 m²
Praha, Na Plzeňce

21 800 000 za nemovitost
Kontakt: Faraon Reality s.r.o. E-mail:Telefon:+420 222701119
Kliknutím souhlasíte s našimi

Popis

  • Tento popis je v:
  • en

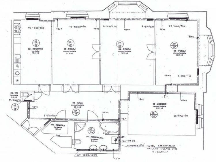
Exkluzivně nabízíme prodej prostorného, světlého bytu 4+1 (150 m2) po rekonstrukci v Praze 5. Byt s nádherným výhledem na Vyšehrad a orientací na jih a východ je situován ve 3.podlaží krásného secesního domu s novou fasádou, střechou a výtahem. Disponuje prostornou halou (23m2), kuchyní (17 m2), obývacím pokojem (27 m2), ložnicí s vestavěnými skříněmi (21 m2), dvěma dalšími pokoji (21 a 22 m2), koupelnou s vanou, sprchovým koutem, dvěma umyvadly a WC (9 m2), technickou místností a samostatným WC s umyvadlem. Všechny pokoje jsou průchozí.

V kuchyni je sporák s indukční sklokeramickou deskou, digestoř, trouba, myčka, lednice s mrazákem a pračka. Plovoucí podlahy a dlažba v kuchyni, v koupelně, WC a u vstupu do bytu. Podlahové vytápění v koupelně a perfektně odizolovaná okna, vytápění plynovým kotlem Buderus umístěným v technické místnosti, bezpečnostní dveře Next, internet. Možnost uskladnění kol, kočárku atd. ve společném sklepě.

Parking před domem (modré zóny). Vynikající dopravní dostupnost - byt je situován v klidné ulici pražského Smíchova mezi stanicemi metra Smíchovské nádraží a Anděl a je ideální rovněž pro reprezentaci a kancelář firmy nebo jako investice.

Cena: 21.800.000 Kč.

Energetická náročnost budovy: E.
ID nemovitosti DDO0269-0002.

Další parametry

  • lokální plynové
  • 5
  • 3
  • Velmi dobrý
  • Cihla
  • E - Nehospodárná
  • osobní
Na tomto webu zpracováváme cookies potřebné pro jeho fungování a analytiku.

Upozornění

Používáte nepodporovaný (zastaralý) internetový prohlížeč!

Pro správný běh našeho portalu není možné použít vámi používaný prohlížeč.

Použijte prosím Microsoft Edge nebo některý z jiných prohlížečů, např. Google Chrome, Firefox.