Prodej bytu 3+KK 70 m²
Dlouhá Ves





































Popis
Hledáte únik z ruchu města, ale nechcete se vzdát pohodlí? Objevte apartmány „V Lukách“ – v podhůří Šumavy, v obci Dlouhá Ves. Jen pět minut od Sušice, ale uprostřed zeleně, s výhledem na lesopark Luh, řeku Otavu a cyklostezku, po které dojedete do centra města přímo od domu.
V místě, kde ráno zpívají ptáci a večer svítí hvězdy, vzniká nový apartmánový dům. Přestavba původního penzionu nabízí stylové, plně funkční apartmány určené pro celoroční rekreaci – i jako chytrou investici. V přízemí bezbariérové byty s terasami, v patře apartmány s balkony a jeden s terasou, samozřejmostí je parkování i přístup z obecní cesty. Součástí je také komunitní zahrada se skleníkem a vzrostlými stromy, které dávají místu přirozený stín i atmosféru.
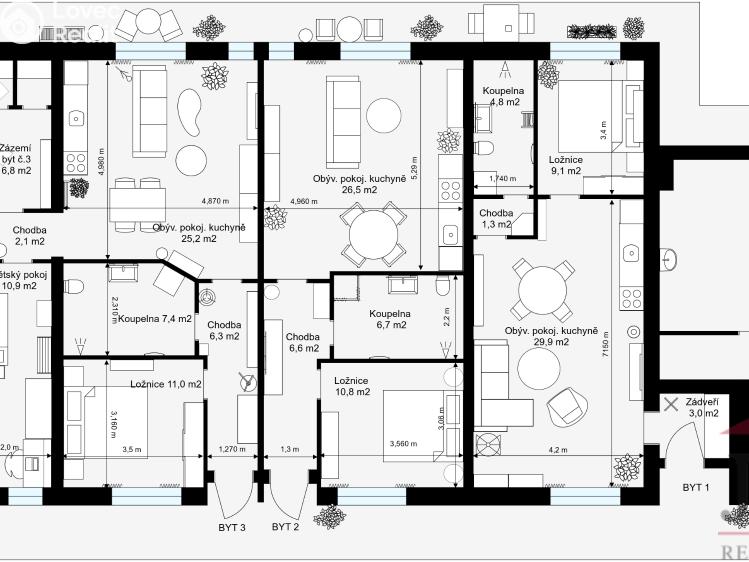
Apartmán/byt č. 3 o dispozici 3+kk s terasou, skladem a parkovacím místem na oploceném pozemku s komunitní zahradou se skleníkem, trampolínou a posezením.
Celková plocha vč. vnitřních příček: 74,3 m2.
Podlahová plocha: 69,7 m2.
Terasa: 12 m2.
Sklad: 6,8 m2.
Celková užitná plocha vč. terasy a skladu: 81,7 m2.
Vytápění a TUV: ÚT – centrální z kotelny v domě na T.P. (nyní zajišťuje prodejce; po prodeji po založení společenství vlastníků bytových jednotek (SVBJ) bude zajišťovat správce bytového domu) a el. boiler.
Nízké náklady spojené s užíváním bytu: služby cca 3.500 Kč (fond oprav, vytápění a TUV, vodné/stočné, správa, pojištění, el. spol. prostor, úklid spol. prostor) + elektřina zálohově přímo dodavateli.
Možnost kompletního zařízení apartmánu vč. kuchyňské linky, nábytku, dekorace, lůžkovin, apod.. na míru podle vašeho přání, jako u prezentačního bytu / apartmánu č. 2.
Uvnitř vás čeká moderní vybavení – vinylové podlahy, dveře Solodoor, ústřední topení, plně vybavená koupelna. Apartmány jsou nízkoenergetické (PENB „A“), promyšlené, útulné a připravené k okamžitému nastěhování nebo rekreaci.
A lokalita? Bezkonkurenční. Sušice nabízí kompletní občanskou vybavenost, wellness, moderní posilovnu, 3D kino. Je tu rozhledna Svatobor s dechberoucím výhledem na celou Šumavu, kulturní akce na ostrově Santos i adrenalin v offparku – rafty, lanové centrum, terénní koloběžky. Šumava vás tu obklopí ze všech stran – hrad Kašperk, zřícenina Rabí, keltské Sedlo nebo výběh vlků v Srní. Oblíbíte si celé Povydří, ledovcová jezera a lyžařský areál Špičák. V obci Dlouhá Ves je COOP, hospoda, knihovna, muzeum dřevařství, kino, kostel, ZŠ a MŠ, dětské hřiště, benzínka i přírodní jez na řece Otavě koupání. Dlouhá Ves – V Lukách. Pro ty, kdo vědí, že čas strávený v přírodě je ten nejcennější. Přijeďte. Užijete si klid. Možná zůstanete.
Byty lze již rezervovat! Doporučujeme osobní prohlídku.
Více informací a prohlídky apartmánů po telefonické domluvě s makléřem p. Jiřím Zudou.
V místě, kde ráno zpívají ptáci a večer svítí hvězdy, vzniká nový apartmánový dům. Přestavba původního penzionu nabízí stylové, plně funkční apartmány určené pro celoroční rekreaci – i jako chytrou investici. V přízemí bezbariérové byty s terasami, v patře apartmány s balkony a jeden s terasou, samozřejmostí je parkování i přístup z obecní cesty. Součástí je také komunitní zahrada se skleníkem a vzrostlými stromy, které dávají místu přirozený stín i atmosféru.
Apartmán/byt č. 3 o dispozici 3+kk s terasou, skladem a parkovacím místem na oploceném pozemku s komunitní zahradou se skleníkem, trampolínou a posezením.
Celková plocha vč. vnitřních příček: 74,3 m2.
Podlahová plocha: 69,7 m2.
Terasa: 12 m2.
Sklad: 6,8 m2.
Celková užitná plocha vč. terasy a skladu: 81,7 m2.
Vytápění a TUV: ÚT – centrální z kotelny v domě na T.P. (nyní zajišťuje prodejce; po prodeji po založení společenství vlastníků bytových jednotek (SVBJ) bude zajišťovat správce bytového domu) a el. boiler.
Nízké náklady spojené s užíváním bytu: služby cca 3.500 Kč (fond oprav, vytápění a TUV, vodné/stočné, správa, pojištění, el. spol. prostor, úklid spol. prostor) + elektřina zálohově přímo dodavateli.
Možnost kompletního zařízení apartmánu vč. kuchyňské linky, nábytku, dekorace, lůžkovin, apod.. na míru podle vašeho přání, jako u prezentačního bytu / apartmánu č. 2.
Uvnitř vás čeká moderní vybavení – vinylové podlahy, dveře Solodoor, ústřední topení, plně vybavená koupelna. Apartmány jsou nízkoenergetické (PENB „A“), promyšlené, útulné a připravené k okamžitému nastěhování nebo rekreaci.
A lokalita? Bezkonkurenční. Sušice nabízí kompletní občanskou vybavenost, wellness, moderní posilovnu, 3D kino. Je tu rozhledna Svatobor s dechberoucím výhledem na celou Šumavu, kulturní akce na ostrově Santos i adrenalin v offparku – rafty, lanové centrum, terénní koloběžky. Šumava vás tu obklopí ze všech stran – hrad Kašperk, zřícenina Rabí, keltské Sedlo nebo výběh vlků v Srní. Oblíbíte si celé Povydří, ledovcová jezera a lyžařský areál Špičák. V obci Dlouhá Ves je COOP, hospoda, knihovna, muzeum dřevařství, kino, kostel, ZŠ a MŠ, dětské hřiště, benzínka i přírodní jez na řece Otavě koupání. Dlouhá Ves – V Lukách. Pro ty, kdo vědí, že čas strávený v přírodě je ten nejcennější. Přijeďte. Užijete si klid. Možná zůstanete.
Byty lze již rezervovat! Doporučujeme osobní prohlídku.
Více informací a prohlídky apartmánů po telefonické domluvě s makléřem p. Jiřím Zudou.
Další parametry
- vodovod
- radiátory
- centrální dálkové
- bojler – elektro
- silnice, bus
- 12 m2
- internet
- 3 fáze
- asfaltová
- 2
- veřejná kanalizace
- 2
- 46 kWh/m2
- č. 264/2020 Sb.
- 230V
- 7 m2
- 840 m2
- 1
- Novostavba
- Cihla
- A - Mimořádně úsporná
- osobní
- Zobrazit průkaz energetické náročnosti budovy
Na tomto webu zpracováváme cookies potřebné pro jeho fungování a analytiku.