Prodej bytu 2+KK 38 m²
Praha, Za strašnickou vozovnou













Popis
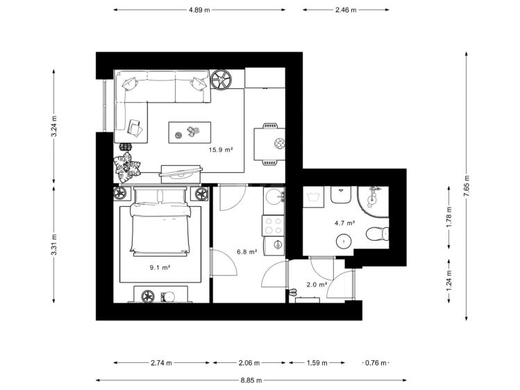
Nabízím vám ke koupi ateliér o dispozici 2+kk, který právě pošel kompletní nákladnou rekonstrukcí. Plovoucí podlahy, velkoformátová dlažba, koupelna se sprchovým koutem, ústřední etážové topení, nové LED osvětlení, izolace, rozvody elektro a veškeré instalace, plastová okna atd. Přesto, že se jednotka nachází ve sníženém přízemí, je zde dostatek denního světla a je uzpůsobena k bydlení. Praktická dispozice - dvě samostatné (neprůchozí) místnosti, koupelna se sprchovým koutem a WC. Ateliér se nachází v udržovaném funkcionalistickém činžovním domě na rozhraní Strašnic a Vinohrad, jen 2 min. od Vinohradské ul. a zastávky tramvaje a 5 min. od metra Strašnická. V případě, že hledáte prostory pro vlastní bydlení, podnikání nebo investiční nemovitost, je tento ateliér ideální volbou. Rád pro vás vyhledám spolehlivého nájemce. Je zde možnost zakoupit současně i sousední ateliér o dispozici 2+kk a ploše 46.2 m2. Možnost financování prostřednictvím hypotečního úvěru. Pro více informací mě neváhejte kontaktovat, rád vám případné dotazy zodpovím osobně.
Další parametry
- vodovod
- 2
- silnice, mhd
- telefon, internet, kabelová televize
- 2
- ústřední elektrické
- 4
- 230V
- -1
- Po rekonstrukci
- Cihla
- G - Mimořádně nehospodárná
- osobní