Prodej bytu 3+1 107 m²
Příchovice
včetně provize, kupních smluv vypracovaných advokátní kanceláří, advokátní úschovy
- Tento popis je v:




























Popis
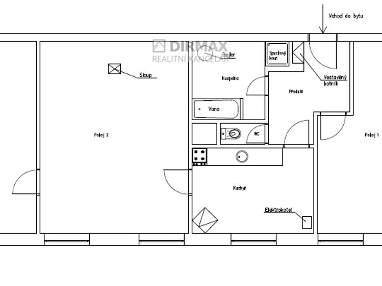
Hledáte pro svojí rodinu klidné bydlení na hezkém místě? Ve výhradním zastoupení nabízíme k prodeji moc hezký, bezbariérový a velmi prostorný byt 3+1 (největší v celém bytovém domě) o rozloze cca 107 m² se sklepní kojí 3m² v Příchovicích u Přeštic.
Celý byt prošel kompletní a nákladnou rekonstrukcí. Nové podlahy, nové rozvody elektřiny a vody, omítky a drobné stavební úpravy.
Po vstupu do bytu se ocitnete v prostorné předsíni, ze které máte přístup do samostatného pokoje o rozloze cca 25m², prostorné koupelny s vanou a sprchovým koutem, samostatného WC a do kuchyně. Z kuchyně se dostanete do velmi prostorného obývacího pokoje o rozloze cca 32m² a do další místnosti o rozloze cca 21m². Celý byt je velmi slunný, okna na východ.
Vytápění je řešeno elektrickým kotlem, ohřev vody pomocí bojleru.
Byt se nachází v přízemí zděného, kompletně rekonstruovaného a zatepleného domu v klidné části obce. Dům je připojený na kanalizaci, plyn a městský vodovod. U domu je velké množství parkovacích stání přímo pod okny bytu. U domu se nachází dětské hřiště. K bytu rovněž náleží prostorná společná sušárna a kolárna s kočárkárnou.
Naleznete zde dostatek soukromí při vašem odpočinku. Koupi této nemovitosti zcela doporučuji. Nemovitost je možné financovat hypotečním úvěrem nebo úvěrem ze stavebního spoření, které pro vás rádi zdarma vyřídíme. Nemovitost není zatížená. PENB energetické třídy D. Více informací vám poskytne realitní makléř. Cena je včetně provize, kupních smluv vypracovaných advokátní kanceláří a advokátní úschovy. Těšíme se na vás při prohlídce, po domluvě i o víkendu.
Další parametry
- vodovod
- radiátory
- elektrokotel
- bojler – elektro
- silnice, bus
- internet
- asfaltová
- 2
- plynovod
- veřejná kanalizace
- 2
- č. 264/2020 Sb.
- 230V
- 3 m2
- 837 m2
- 1
- Po rekonstrukci
- Cihla
- D - Méně úsporná
- osobní