Prodej rodinného domu 150 m², pozemek 1052 m²
Křečkov

































Popis
Soccer Reality vám zprostředkuje k prodeji prostorný rodinný dům o dispozici 5+1 v obci Křečkov, jen 3 km od Poděbrad. Dům se nachází na klidném místě na konci obce, za zahradou se rozprostírá ořechová alej a potok, což zajišťuje soukromí a příjemné prostředí. Celková užitná plocha domu je 150 m², navíc je k dispozici zastřešená terasa o velikosti 24 m² a krásná zahrada o rozloze 1.052 m².
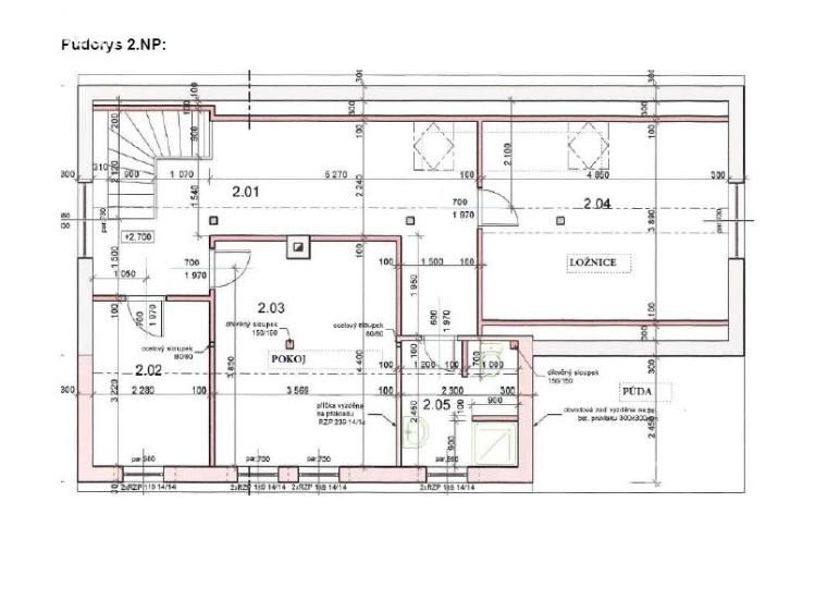
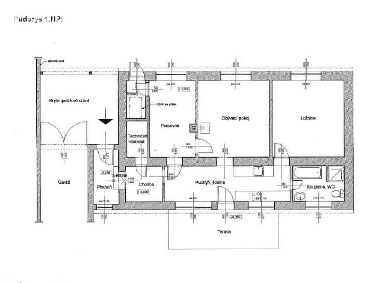
Nemovitost byla postavena v 60. letech a v roce 2005 prošla rozsáhlou rekonstrukcí. V roce 2019 byla dokončena půdní vestavba a nástavba nad částí domu. Dům je zděný a suchý, se střechou z betonové tašky KM-Beta a novými krovy z let 2017–2019. V přízemí o rozloze 80 m² se nachází předsíň, chodba, technická místnost, kuchyně s jídelnou, obývací pokoj, ložnice, pracovna a koupelna s vanou, sprchovým koutem a WC. Z jídelny je přímý vstup na zastřešenou terasu s pergolou, odkud vede cesta do okrasné i užitkové zahrady. Podkroví o výměře 70 m² nabízí velkou otevřenou halu, dvě ložnice, koupelnu se sprchovým koutem a WC a komoru. Sklep má 12 m².
Dům je vybaven dřevěnými EURO okny, v přízemí je dlažba s podlahovým topením, v patře pak plovoucí laminátová podlaha Quickstep. Vytápění zajišťuje nový elektrokotel z roku 2024, v patře jsou instalovány dekorativní kamenné topné panely Geme-therm, alternativně lze využít krbová kamna Haas+Sohn v obývacím pokoji. Ohřev vody zajišťují dva bojlery – jeden ve sklepě a druhý v podkroví. Dům je napojen na veřejný vodovod a kanalizaci, k dispozici je plynová přípojka (aktuálně nevyužívaná) a vlastní studna s pitnou vodou. Dům je zateplen, část fasády byla nově dokončena v roce 2024, zbývá finální povrchová úprava na jedné straně.
Součástí prodeje je garáž, dílna, dvě kůlny, dřevník a letní kuchyně s komínem. Parkování je zajištěno v garáži, pod krytým stáním i před domem, kde jsou dvě stání ze zámkové dlažby. Zahrada je částečně okrasná a částečně užitková.
Obec Křečkov nabízí dobrou občanskou vybavenost – základní školu pro první stupeň, dvě školky (včetně soukromé dětské skupiny), obchod, hospůdku, fotbalové hřiště a dětská hřiště. Dopravní dostupnost je výborná – do Poděbrad i Nymburka se pohodlně dostanete autobusem, vlakové spojení je v nedalekém Velkém Zboží. Do Prahy (Černý Most) se dostanete za 35 minut a do Mladé Boleslavi za 45 minut. Tento dům je ideální pro rodiny, které hledají klidné místo k bydlení s výbornou dostupností města a možností užívat si vlastní zahradu a přírodu hned za domem.
Nemovitost můžete financovat hypotečním úvěrem.
Další parametry
- silnice, bus
- 24 m2
- internet
- 2
- 4
- ústřední elektrické, solární kolektory
- plynovod
- veřejná kanalizace
- 1052 m2
- 2
- 12 m2
- 97 m2
- 1052 m2
- Velmi dobrý
- Smíšená
- G - Mimořádně nehospodárná