Продаж квартири 4+KK 69 m², ділянка 77 m²
Praha, Tupolevova 472






























Опис
- Цей опис є в:
Prohlídka je v pátek 3.10.2025 v 16:00
ID: SaleTupolevova
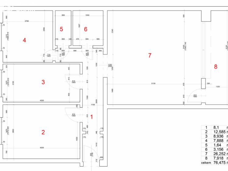
Nabízíme k prodeji hezký a velmi příjemný byt 4+kk, 77m2 včetně zasklené lodžie 8m2 a sklepu 1m2 v 1. patře panelového domu v žádané lokalitě Praha 9 - Letňany.
Byt se skládá z obývacího pokoje s kuchyní a vstupem na lodžii, ložnice, dětského pokoje, menší ložnice pro hosty (lze využít jako pracovnu nebo dle přání), koupelny s vanou, samostatného WC a chodby, ze které je přístup do všech výše uvedených prostor. Byt je kompletně zařízený (nábytek je zahrnut v prodejní ceně).
V okolí veškerá občanská vybavenost. Nachází se v bezprostřední blízkosti OC Letňany (obchody, restaurace, banky, Tesco, kino atd). Nedaleko je pošta. V okolí jsou supermarket Albert a Penny Market, několik dětských hřišť a tenisová hala a Aquapark. Pro procházky či běh je nedaleko lesopark Letňany. Perfektní dopravní dostupnost, 4 min. na metro C - Letňany.
Byt je připraven k prodeji
Cena: 7 900 000 Kč
Volejte, pište: Viber, WhatsApp, Telegram
Při telefonování prosím sdělte ID číslo bytu.
Інші параметри
- mhd, автобус
- інтернет, кабельне телебачення, інше
- асфальтова
- 8 m2
- 9
- 230V
- 1 m2
- 77 m2
- 2
- Дуже добре
- Панельне
- особистий