Pronájem bytu 1+KK 49 m²
Praha, Křižíkova
+ 2.000,- poplatky + elektřina dle spotřeby










Popis
Soccer Reality vám zprostředkuje na pronájem byt 1+kk o výměře 49 m2, který se nachází na lukrativním místě v srdci Karlína. Byt se nachází v 1. patře cihlového domu po rekonstrukci.
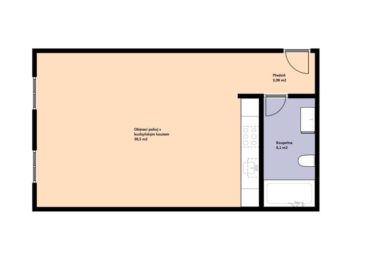
Po vstupu do bytu vejdete do prostorné předsíně, která je ihned spojená s velkým otevřeným prostorem, kde se nachází kompletně vybavená kuchyňská linka se všemi spotřebiči včetně pračky. Koupelna je s vanou a WC dohromady.
Byt je ideálním místem pro jednotlivce či pár.
Dům se nachází v těsné blízkosti Karlínského náměstí, kde naleznete vyhlášené restaurace, kavárny, bistra nebo také pivovar. V docházkové vzdálenosti jsou také obchody, potraviny, lékárna a pošta. Na metro Florenc se dostanete za 5 minut chůze.
Další parametry
- silnice, mhd
- internet
- lokální elektrické
- 3
- 230V
- 2
- Velmi dobrý
- Cihla
- D - Méně úsporná
- osobní
- Ano