Prodej bytu 4+1 81 m²
Cheb, Hrnčířská






























Popis
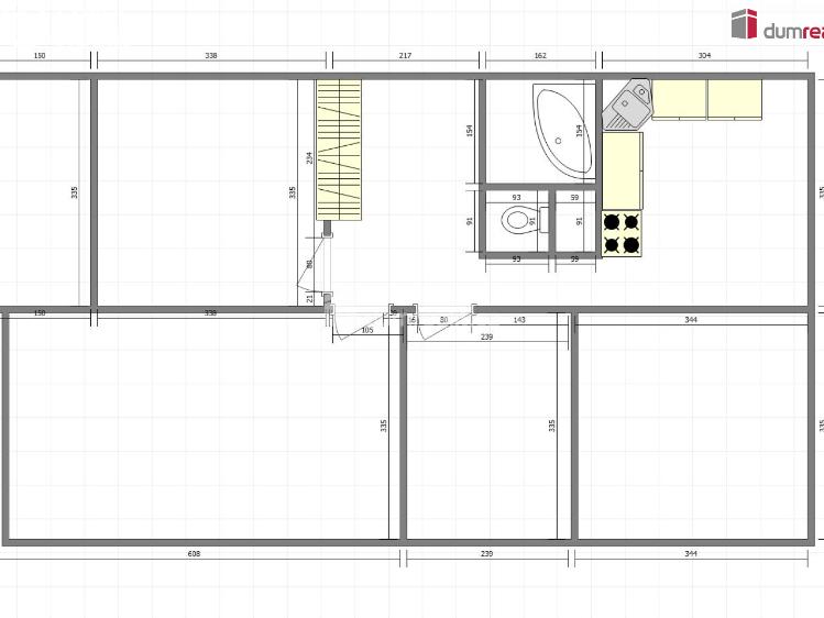
Dumrealit.cz Vám zprostředkuje koupi krásného prostorného bytu 4+1/L/S v prvním patře (2.NP) panelového domu s výtahem v Chebu. Bytová jednotka o celkové rozloze 81 m² (z čehož 4 m² tvoří zasklená lodžie a 2 m² tvoří sklep) prošla kompletní rekonstrukcí včetně nového zděného jádra, koupelny, toalety, kuchyně. Dále jsou zde nové podlahy, malby, štuky, nová topná tělesa, vchodové i interiérové dveře. Dispozice bytu nabízí čtyři velké neprůchozí pokoje a samostatnou kuchyni, je zde velká předsíň s vestavěnými skříněmi, koupelna a samostatná toaleta. Zasklená lodžie s několika okny nabízí vpravo výhled na komplex Chebského hradu. Vytápění a rozvod teplé vody je zajištěn centrálně dálkově. Budova má novou zateplenou fasádu, novou střechu, nové stoupačky, rozvody plynu, nový výtah, vchodové dveře a zvonky. Rekonstrukce domu proběhla před třemi lety. K bytu náleží pěkný suchý sklep. K dispozici je kolárna, kočárkárna. Parkování je možné před domem. Umístění domu umožňuje bez průtahů vyrazit do městského parku, který navazuje na volnočasový areál Krajinka, dále na sportovní areál a komplex chebského hradu. Do 5 minut chůze je LIDL, nedaleko je také Tesco, dále pak v OC Pivovar jsou další obchody a supermarkety. Cheb nabízí kompletně opravené náměstí (5 minut chůze), kde najdete vyhlášené restaurace Hvězdu či U Krále Jiřího, banky, úřady, obchody, městský úřad, občerstvení apod.. Cheb je skvělé výchozí místo pro lidi hledající práci v Německu, které nabízí jak dostatek pracovních příležitostí tak výhodných nákupů. Byt je prost jakýchkoli nároků třetích stran či věcných břemen. Cena zahrnuje provizi RK a veškerý právní servis. V případě zájmu Vám rádi doporučíme naše prověřené hypoteční specialisty. Ev. číslo: 652433.
Další parametry
- 7
- 18 kWh/m2
- 2
- Velmi dobrý
- Panel
- E - Nehospodárná
- osobní