Prodej bytu 1+1 69 m²
Aš, Slovanská



















Popis
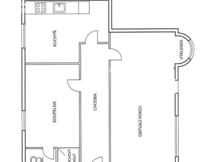
Nabízíme k prodeji atypický byt 1+1 v nově zrekonstruované vile v Aši, která se nachází v klidné lokalitě v ulici Slovanská. Bytová jednotka se nachází v I. nadzemním podlaží a má výměru 69,5 m2. Proběhla zde kompletní přestavba a vznikl tento zajímavý byt, který sestává z předsíně, koupelny, obývacího pokoje a kuchyně. Předmětem prodej je též podíl na oploceném pozemku, kde si můžete zaparkovat Váš automobil a zahradu využívat též k rekreaci. Vytápění je zajištěné plynovým kotlem. Vše má samostatné měření. Doporučujeme osobní prohlídku.
Další parametry
- ústřední elektrické
- 4
- 1
- Po rekonstrukci
- Cihla
- G - Mimořádně nehospodárná
- osobní
Na tomto webu zpracováváme cookies potřebné pro jeho fungování a analytiku.