Pronájem bytu 3+KK 146 m²
Praha, Na Maninách





























Popis
- Tento popis je v:
K pronájmu luxusní loftový, celkově zařízený a plně klimatizovaný byt 3+kk, 146 m2, v industriálním duchu kompletně zrekonstruované původní budovy Prvního pražského měšťanského pivovaru z roku 1895 se 40 apartmány, 5 m vysokými stropy a zachovanými původními industriálními prvky, s výtahem, sklepem, garáží v rezidenčním projektu A7 Holešovický pivovar, v klidném areálu kancelářského/obchodního parku lemovaného stromy přímo v srdci nově vyhlášené pražské umělecké čtvrti, Holešovice, Praha 7.
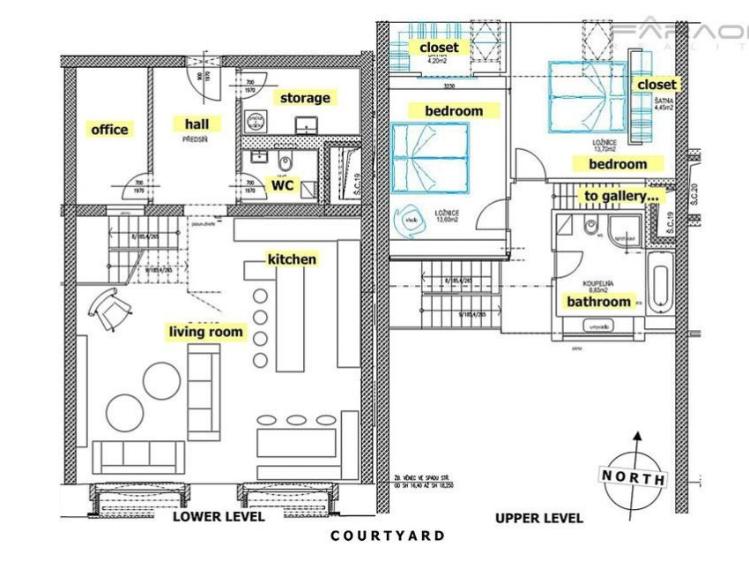
Dispozice třípatrového loftu tvoří:
Velký obývací pokoj s moderní kuchyňskou linkou, jídelnou a barem, pracovní místnost, vstupní chodba, úložný prostor, prádelna, toaleta pro hosty v prvním patře;
2 ložnice se šatnami (jedna s velkým panoramatickým oknem), koupelna s vanou a samostatným sprchovým koutem ve druhém patře;
sky-gallery ve třetím patře.
Vybavení zahrnuje pračku a samostatnou sušičku, indukční varnou desku, troubu, digestoř, myčku nádobí, lednicí s mrazákem, mikrovlnku. V bytě jsou přípojky na vysokorychlostní internet, satelitní a kabelovou televizi [O2, UPC].
Byt se nachází v křídle budovy s pouhými 6 apartmány, což zajišťuje klid a soukromí, dále má několik unikátních industriálních prvků - klenutý strop, ocelové nosníky, odhalené cihlové zdi z původního pivovaru, odhalené betonové stropy, skleněné cihly, průmyslový stropní ventilátor atd.
Projekt je doplněn zelenými plochami a poskytuje všem svým obyvatelům klidné bydlení v nadstandardním provedení nedaleko centra hlavního města, v dosahu s veškerou občanskou vybaveností, na křižovatce ulic Komunardů a U Průhonu, 3 minuty chůze od čtyř tramvajových zastávek: Maniny, U Průhonu, Dělnická, Ortenovo náměstí. Součástí komplexu je supermarket Albert a DM drogerie, dále restaurace a kavárna. Krátkodobé parkování pro hosty je k dispozici přímo před budovou, stejně jako dlouhodobé parkování v podzemních garážích.
Služby včetně energie a internetu činí 12.000 Kč měsíčně (údržba budovy, úklid, osvětlení, odvoz odpadků, elektřina v bytě, topení, voda) a jsou zúčtovány dle skutečných nákladů.
K dispozici je sklep (7 m2) za 2.000 Kč měsíčně (volitelně).
V případě potřeby je možné pronajímat garážové stání v suterénu budovy za 3.200 Kč měsíčně.
K nastěhování ihned.
Energetická náročnost budovy: G (nebyla sdělena vlastníkem nemovitosti) ID nemovitosti ANK0167-0001.
Další parametry
- ústřední elektrické
- 1
- 7 m2
- 2
- Po rekonstrukci
- Cihla
- G - Mimořádně nehospodárná
- osobní