Prodej rodinného domu 350 m², pozemek 676 m²
Žleby, Zámecké náměstí 6


















Popis
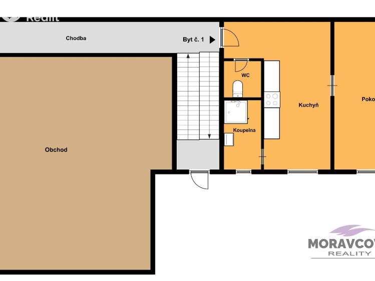
Máme pro Vás rodinný dvoupatrový dům se 3 bytovými jednotkami a obchodem nacházející se v centru města Žleby v blízkosti zámku z 2.poloviny 19.století. Dispozice : v přízemí : chodba, obchod; bytová jednotka 2+kk : chodba, kuchyň s jídelním koutem, obývací pokoj, malá koupelna se sprchovým koutem a wc, v 1.patře: chodba, 2.bytová jednotka 2+kk : chodba, kuchyň s jídelním koutem, obývací pokoj, malá koupelna se sprchovým koutem a wc; 3.bytová jednotka : chodba, kuchyň , 3 pokoje a koupelna s vanou a wc ; velká prostorná půda vhodná k vestavbě, pod domem sklep, topení samostatně řešeno pro každý byt, WAW nebo elektrické, ohřev vody bojlerem, voda z veřejného vodovodu, u 2 menších bytů proběhla výměna oken za nová, u domu malá zahrada.
V současnosti se připravuje Prohlášení vlastníka, kterým v domě vzniknou 3 samostatné bytové jednotky a 1 nebytová. V případě vážného zájmu lze prodat i pouze 1 bytovou či nebytovou jednotku. Dům je určen k celkové rekonstrukci.
Celková výměra pozemku 676 m2.
Byty i obchod jsou tržně pronajaty. Bude-li to nový majitel požadovat, bude při předání nemovitosti objekt prázdný. V obci veškerá občanská vybavenost.
Protože není známa energetická třída (PENB) této nemovitosti, uvádíme v souladu s novelou zákona 406/2000 Sb. nejhorší možnou energetickou třídu, tedy G. Více informací u makléře.
V současnosti se připravuje Prohlášení vlastníka, kterým v domě vzniknou 3 samostatné bytové jednotky a 1 nebytová. V případě vážného zájmu lze prodat i pouze 1 bytovou či nebytovou jednotku. Dům je určen k celkové rekonstrukci.
Celková výměra pozemku 676 m2.
Byty i obchod jsou tržně pronajaty. Bude-li to nový majitel požadovat, bude při předání nemovitosti objekt prázdný. V obci veškerá občanská vybavenost.
Protože není známa energetická třída (PENB) této nemovitosti, uvádíme v souladu s novelou zákona 406/2000 Sb. nejhorší možnou energetickou třídu, tedy G. Více informací u makléře.
Další parametry
- WAW
- vlak, silnice, bus
- asfaltová
- 1
- lokální plynové, lokální elektrické
- plynovod
- veřejná kanalizace, septik, jímka
- 426 m2
- 2
- č. 264/2020 Sb.
- 230V
- 250 m2
- 676 m2
- Před rekonstrukcí
- Smíšená
- G - Mimořádně nehospodárná
Na tomto webu zpracováváme cookies potřebné pro jeho fungování a analytiku.