Prodej bytu 3+KK 163 m²
Harrachov
Včetně garážového a venkovního parkovacího stání. Včetně právního, relitního a kompletního servisu.





















































































































































Popis
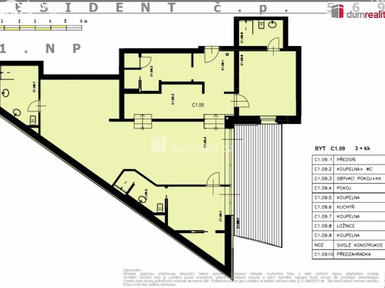
prodej zbrusu nového, prostorného horského apartmánu 3+kk (140 m²) s vlastní předzahrádkou (23 m²), třemi koupelnami, sklepem, garážovým stáním i vlastním venkovním parkovacím místem, umístěný v uzavřeném areálu Resort Resident Harrachov. Apartmán se nachází v klidné části resortu a nabízí krásný výhled na hory. Apartmán rovněž disponuje moderní, rekuperační jednotkou s rozvody do všech místností.
Dispozice a vybavení:
Obývací pokoj s kuchyňským koutem: 53,7 m²
Ložnice: 15,7 m²
Pokoj: 14,2 m²
Předsíň: 10,2 m²
3 koupelny: 9,5 m², 5,2 m², 5,9 m² (včetně WC)
Podlahové vytápění v celém apartmánu
Kvalitní keramická dlažba v celé ploše
Sklepní kóje (3 m²)
Předzahrádka vhodná k relaxaci nebo posezení
Parkování:
Garážové stání v objektu
Vlastní venkovní parkovací místo v areálu
Výhody resortu:
Přímý vstup do luxusního wellness centra Grotta Spa (bazén, sauna, relax zóna)
Možnost snídaňového servisu v přízemí budovy
Nízké provozní náklady
Lokalita:
Atraktivní poloha v srdci Harrachova
V blízkosti ski areál, bobová dráha, Hilby trail, Monkey Park
Přímé napojení na běžkařské tratě a Jizerskou magistrálu
Perfektní pro zimní i letní rekreaci
Investiční potenciál:
Vysoký zájem o krátkodobé pronájmy.
Stabilní návratnost díky službám resortu a atraktivitě lokality.
Financování a prohlídky:
Zajistíme nejvýhodnější hypoteční úvěr na trhu. Prohlídky možné i o víkendech.
Neváhejte mě kontaktovat – rád poskytnu veškeré doplňující informace. Ev. číslo: 651652.
Další parametry
- 4
- 1
- Velmi dobrý
- Skeletová
- B - Velmi úsporná
- osobní