Prodej bytu 1+KK 26 m²
Praha, Hornoměcholupská

5 100 000 za nemovitost

včetně provize RK

Kontakt:Ing. Jaroslav Šesták E-mail:Telefon:605 172 214
Kliknutím souhlasíte s našimi

Popis

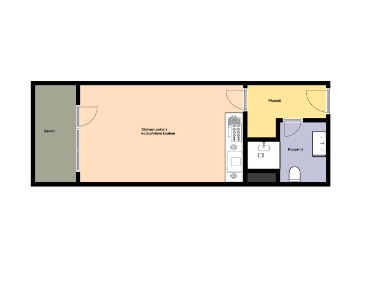
Prodej hezkého bytu 1+kk/B/S, 26 m2, Praha 10 - Horní Měcholupy, Hornoměcholupská
Hledáte vlastní dostupné bydlení v novostavbě? Toužíte po balkonu? Oceníte sklep?

Soccer Reality vám nabízí útulný byt, který se nachází ve 2. nadzemním podlaží moderní novostavby od CENTRAL GROUP v oblíbené Javorové čtvrti v Praze 10 – Horních Měcholupech. Byt se pyšní výhodnou polohou s výhledem do klidné části projektu, příjemnou východní orientací a balkonem o velikosti 5 m², ideálním pro ranní kávu nebo chvíle odpočinku.

Hlavní výhody: zateplený plášť budovy, plastová okna s izolačními dvojskly, centrální dálkové vytápění, bezpečnostní dveře NEXT, datové rozvody pro internet, praktická kuchyňská linka se spotřebiči, hezká laminátová plovoucí podlaha. V chodbě je praktická skříň. Koupelna je vybavena sprchovým koutem, pračkou a žebříčkovým radiátorem.

V ceně bytu je navíc vlastní uzamykatelný sklep (3,7 m2), ideální na uskladnění kol, lyží, nářadí, pneumatik a všeho ostatního.

Lokalita má vynikající dopravní dostupnost MHD. Na metro C – Háje a metro A – Strašnickou a Skalku jezdí autobusy 183, 154 a 175.

Veškerá občanská vybavenost je v místě. Kaufland, Retail Park. Dostatek zeleně, hřišť a sportovišť naleznete u blízké Hostivařské přehrady. Dostatek parkovacích míst je přímo u domu.

Prohlídky a rezervace jsou možné ihned.

Další parametry

  • vodovod
  • vlak, dálnice, silnice, mhd, bus
  • internet
  • 2
  • ústřední dálkové
  • 5
  • 230V
  • 4 m2
  • 5 m2
  • 2
  • Novostavba
  • Cihla
Na tomto webu zpracováváme cookies potřebné pro jeho fungování a analytiku.

Upozornění

Používáte nepodporovaný (zastaralý) internetový prohlížeč!

Pro správný běh našeho portalu není možné použít vámi používaný prohlížeč.

Použijte prosím Microsoft Edge nebo některý z jiných prohlížečů, např. Google Chrome, Firefox.