Sale family house 176 m², land 622 m²
Kladno, U zastávky 1862































Description
Nabízíme k prodeji dvougenerační cihlový rodinný dům ve vyhledávané rezidenční lokalitě Kladno – Rozdělov, v ulici U zastávky. Dům je ve velmi dobrém technickém stavu, je zateplený polystyrenem o tloušťce 10 cm a střecha je osazena krytinou Bramac. Nemovitost je technicky i funkčně rozdělena na dvě samostatné bytové jednotky, každá má vlastní plynoměr, vodoměr i elektroměr, a zároveň jsou k dispozici dva samostatné vstupy, což umožňuje pohodlné bydlení pro dvě generace, případně kombinaci bydlení a pronájmu.
Součástí domu je udržovaná zahrada s řadou praktických doplňkových staveb. K dispozici je dvojgaráž o velikosti 26,5 m2 m² s vraty na dálkové ovládání, dále samostatná letní prádelna o ploše 6 m², sklad o velikosti 8 m², skleník, pergola o výměře 9 m² a přístřešek s krbem o velikosti 9 m², který nabízí příjemné zázemí pro posezení.
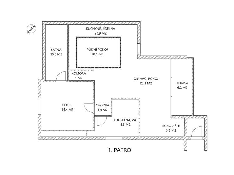
Horní podlaží prošlo kompletní moderní rekonstrukcí a nabízí vysoký standard bydlení. Nachází se zde obývací pokoj s velkým francouzským oknem se vstupem na terasu. Její orientace je jihozápadní a je vybavena zatahovací markýzou. Další obytný prostor je řešen jako otevřený celek propojující obývací část s kuchyňským koutem a jídelnou. K dispozici je ložnice s navazující šatnou, koupelna s WC, praktický kumbál a schodiště do podkroví, kde se nachází další ložnice. Vytápění a ohřev teplé vody zajišťuje plynový kotel Dakon se zásobníkem, v celém podlaží, kromě ložnice je podlahové vytápění řízené termostatem. Toaleta je řešena závěsným systémem Geberit. Interiér doplňují sádrokartonové podhledy a moderní kuchyňská linka se sklokeramickou deskou Schott Ceran, troubou Whirlpool a digestoří.
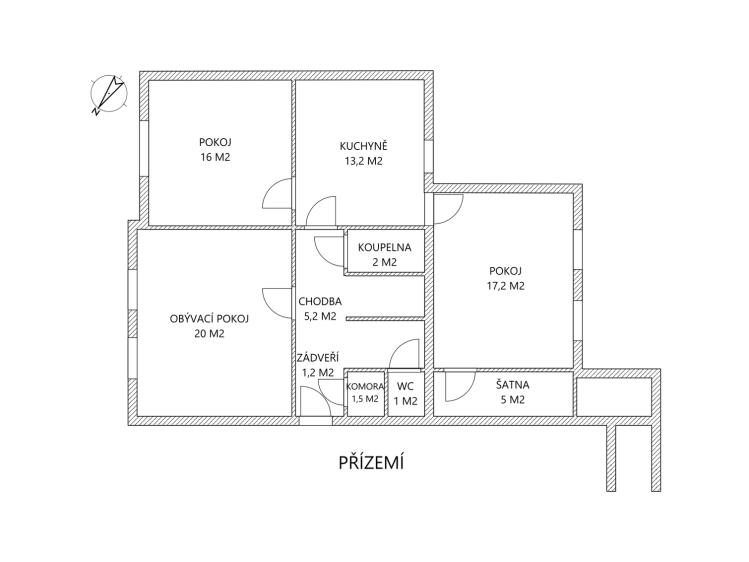
Spodní podlaží je ve velmi zachovalém původním stavu a nabízí dispozici zahrnující chodbu, obývací pokoj, dvě ložnice, kuchyň, šatnu, samostatné WC, koupelnu a vstup do sklepa. Sklep má rozlohu 22 m2. Vytápění zde zajišťuje nový plynový kotel Immergas, ohřev vody je řešen bojlerem Dražice. Na podlahách jsou plovoucí podlahy a koberce, v koupelně je dlažba a sprchový kout. Kuchyně je vybavena troubou a sklokeramickou deskou Electrolux a v ložnici je k dispozici vestavěná skříň.
Velkou předností je poloha domu, která kombinuje klidné rezidenční prostředí s výbornou dostupností do centra Kladna a kompletní občanskou vybaveností v okolí. V docházkové vzdálenosti je MHD a modernizovaná vlaková stanice, která zajišťuje velmi dobré spojení s Prahou. V blízkosti se nachází také aquapark, nemocnice, sportoviště Sletiště a vyhledávané gastronomické podniky včetně restaurace Na Letné.
V případě zájmu o více informací nebo sjednání prohlídky nás neváhejte kontaktovat.
Součástí domu je udržovaná zahrada s řadou praktických doplňkových staveb. K dispozici je dvojgaráž o velikosti 26,5 m2 m² s vraty na dálkové ovládání, dále samostatná letní prádelna o ploše 6 m², sklad o velikosti 8 m², skleník, pergola o výměře 9 m² a přístřešek s krbem o velikosti 9 m², který nabízí příjemné zázemí pro posezení.
Horní podlaží prošlo kompletní moderní rekonstrukcí a nabízí vysoký standard bydlení. Nachází se zde obývací pokoj s velkým francouzským oknem se vstupem na terasu. Její orientace je jihozápadní a je vybavena zatahovací markýzou. Další obytný prostor je řešen jako otevřený celek propojující obývací část s kuchyňským koutem a jídelnou. K dispozici je ložnice s navazující šatnou, koupelna s WC, praktický kumbál a schodiště do podkroví, kde se nachází další ložnice. Vytápění a ohřev teplé vody zajišťuje plynový kotel Dakon se zásobníkem, v celém podlaží, kromě ložnice je podlahové vytápění řízené termostatem. Toaleta je řešena závěsným systémem Geberit. Interiér doplňují sádrokartonové podhledy a moderní kuchyňská linka se sklokeramickou deskou Schott Ceran, troubou Whirlpool a digestoří.
Spodní podlaží je ve velmi zachovalém původním stavu a nabízí dispozici zahrnující chodbu, obývací pokoj, dvě ložnice, kuchyň, šatnu, samostatné WC, koupelnu a vstup do sklepa. Sklep má rozlohu 22 m2. Vytápění zde zajišťuje nový plynový kotel Immergas, ohřev vody je řešen bojlerem Dražice. Na podlahách jsou plovoucí podlahy a koberce, v koupelně je dlažba a sprchový kout. Kuchyně je vybavena troubou a sklokeramickou deskou Electrolux a v ložnici je k dispozici vestavěná skříň.
Velkou předností je poloha domu, která kombinuje klidné rezidenční prostředí s výbornou dostupností do centra Kladna a kompletní občanskou vybaveností v okolí. V docházkové vzdálenosti je MHD a modernizovaná vlaková stanice, která zajišťuje velmi dobré spojení s Prahou. V blízkosti se nachází také aquapark, nemocnice, sportoviště Sletiště a vyhledávané gastronomické podniky včetně restaurace Na Letné.
V případě zájmu o více informací nebo sjednání prohlídky nás neváhejte kontaktovat.
Other parameters
- long-distance water supply
- radiators, underfloor heating
- gas boiler
- gas boiler
- 1
- train, highway, road, mhd, bus
- asphalt
- No
- 4
- pipeline
- public sewer
- 2
- 2
- 183 kWh/m2
- č. 264/2020 Sb.
- 230V
- 22 m2
- 113 m2
- 622 m2
- Very good
- Brick
- E - Inefficient
- Show building energy performance certificate
On this website we process cookies necessary for its operation and analysis.