Sale family house 79 m², land 567 m²
Hulín



















Description
Nabízíme k prodeji rodinný dům v klidné obci Záhlinice, místní části Hulína, ideální pro rodinné bydlení i investici. Potenciál rekonstrukce dle vlastních představ. Nemovitost je obyvatelná, zároveň však nabízí prostor pro modernizaci dle nároků nového majitele.
Zastavěná plocha rodinného domu činí 108 m², garáž a dílna stojící v zdaní části pozemku má 77 m² a zahrada 382 m². Celková výměra pozemků je 567 m².
Napojení na inženýrské sítě: nemovitost je připojena na obecní kanalizaci, zdroj vody je zajištěn z místního pivovaru. Ohřev vody zajišťuje elektrický bojler. Vytápění domu je řešeno krbovými kamny na dřevo s výměníkem, přičemž teplo je rozváděno do radiátorů v jednotlivých místnostech.
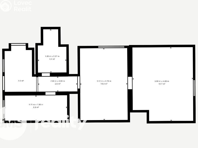
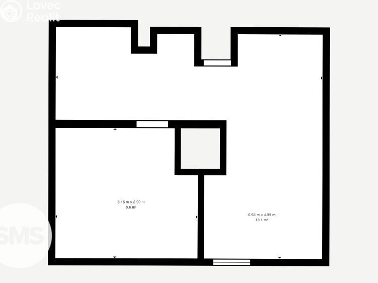
Dispozice a výměry místností:
Přízemí: vstupní prostor 5,5 m² navazující na chodbu o výměře 2,6 m², technická místnost 4,4 m², koupelna 6,8 m², kuchyně 14,9 m² a obývací pokoj o velikosti 18,7 m² (součástí obývacího pokoje je schodiště do druhého patra).
Druhé patro: ložnice 8,6 m² a dětský pokoj včetně chodby 18,1m².
Dům je v současném stavu vhodný k užívání a současně představuje ideální příležitost pro klienty, kteří si chtějí bydlení upravit podle vlastních představ, modernizovat dispozice či celkový standard domu.
Zajímavostí a zároveň dlouhodobě funkčním řešením je napojení domu na řád pitné vody z místního pivovaru, nikoli na obecní vodovod. Tento systém využívá více okolních domů a je dlouhodobě spolehlivý, což představuje kuriozitu.
Záhlinice jsou vyhledávanou lokalitou díky kombinaci venkovského klidu a výborné dopravní dostupnosti. Přímo v obci se nachází mateřská škola, obchod se smíšeným zbožím, restaurace, místní pivovar a možnosti sportovního i kulturního vyžití. Kompletní občanskou vybavenost nabízí nedaleký Hulín vzdálený přibližně 3 km, kde najdete základní školu, zdravotní středisko, lékárny, supermarkety, poštu, banky, sportoviště i široké spektrum služeb.
Dopravní dostupnost je jednou z hlavních předností této lokality. Hulín je významným železničním uzlem s přímými spoji do Přerova, Otrokovic, Zlína, Brna i Olomouce a je vzdálen pouhých několik minut jízdy autem. Z obce je zajištěno pravidelné autobusové spojení do Hulína a okolních obcí. Výborné je také silniční napojení – Hulín je vzdálen přibližně 3 km, Kroměříž asi 10 km, Přerov 15 km, Otrokovice 20 km a Zlín zhruba 25 km. V blízkosti se nachází nájezdy na dálnice D55 a D1.
Lokalita nabízí také široké pracovní příležitosti: v Hulíně se nacházejí průmyslové a logistické areály, v Otrokovicích významný zaměstnavatel Continental Barum, Kroměříž nabízí pracovní příležitosti ve službách, školství i zdravotnictví, Přerov je významným dopravním a průmyslovým centrem a Zlín poskytuje uplatnění v administrativním i výrobním sektoru.
Záhlinice představují ideální místo pro klidné rodinné bydlení s výbornou dostupností, blízkostí přírody a současně i potenciálem růstu hodnoty nemovitosti.
Pro více informací mě neváhejte kontaktovat. Ráda Vám sdělím další detaily a domluvím prohlídku.
Zastavěná plocha rodinného domu činí 108 m², garáž a dílna stojící v zdaní části pozemku má 77 m² a zahrada 382 m². Celková výměra pozemků je 567 m².
Napojení na inženýrské sítě: nemovitost je připojena na obecní kanalizaci, zdroj vody je zajištěn z místního pivovaru. Ohřev vody zajišťuje elektrický bojler. Vytápění domu je řešeno krbovými kamny na dřevo s výměníkem, přičemž teplo je rozváděno do radiátorů v jednotlivých místnostech.
Dispozice a výměry místností:
Přízemí: vstupní prostor 5,5 m² navazující na chodbu o výměře 2,6 m², technická místnost 4,4 m², koupelna 6,8 m², kuchyně 14,9 m² a obývací pokoj o velikosti 18,7 m² (součástí obývacího pokoje je schodiště do druhého patra).
Druhé patro: ložnice 8,6 m² a dětský pokoj včetně chodby 18,1m².
Dům je v současném stavu vhodný k užívání a současně představuje ideální příležitost pro klienty, kteří si chtějí bydlení upravit podle vlastních představ, modernizovat dispozice či celkový standard domu.
Zajímavostí a zároveň dlouhodobě funkčním řešením je napojení domu na řád pitné vody z místního pivovaru, nikoli na obecní vodovod. Tento systém využívá více okolních domů a je dlouhodobě spolehlivý, což představuje kuriozitu.
Záhlinice jsou vyhledávanou lokalitou díky kombinaci venkovského klidu a výborné dopravní dostupnosti. Přímo v obci se nachází mateřská škola, obchod se smíšeným zbožím, restaurace, místní pivovar a možnosti sportovního i kulturního vyžití. Kompletní občanskou vybavenost nabízí nedaleký Hulín vzdálený přibližně 3 km, kde najdete základní školu, zdravotní středisko, lékárny, supermarkety, poštu, banky, sportoviště i široké spektrum služeb.
Dopravní dostupnost je jednou z hlavních předností této lokality. Hulín je významným železničním uzlem s přímými spoji do Přerova, Otrokovic, Zlína, Brna i Olomouce a je vzdálen pouhých několik minut jízdy autem. Z obce je zajištěno pravidelné autobusové spojení do Hulína a okolních obcí. Výborné je také silniční napojení – Hulín je vzdálen přibližně 3 km, Kroměříž asi 10 km, Přerov 15 km, Otrokovice 20 km a Zlín zhruba 25 km. V blízkosti se nachází nájezdy na dálnice D55 a D1.
Lokalita nabízí také široké pracovní příležitosti: v Hulíně se nacházejí průmyslové a logistické areály, v Otrokovicích významný zaměstnavatel Continental Barum, Kroměříž nabízí pracovní příležitosti ve službách, školství i zdravotnictví, Přerov je významným dopravním a průmyslovým centrem a Zlín poskytuje uplatnění v administrativním i výrobním sektoru.
Záhlinice představují ideální místo pro klidné rodinné bydlení s výbornou dostupností, blízkostí přírody a současně i potenciálem růstu hodnoty nemovitosti.
Pro více informací mě neváhejte kontaktovat. Ráda Vám sdělím další detaily a domluvím prohlídku.
Other parameters
- local water source
- underfloor heating, stove
- wood-burning stove
- electric water heater
- train, highway, road, bus
- concrete, cobblestone, asphalt, reinforced
- No
- 4
- 2
- public sewer
- 1
- 2
- č. 264/2020 Sb.
- 77 m2
- 567 m2
- Good
- Brick
- G - Extremely inefficient
On this website we process cookies necessary for its operation and analysis.