Rent apartment 3+1 72 m²
Praha, Pískovcová 733/14



















Description
APALUCHA REALITY Vám exkluzivně nabízí k pronájmu byt 3+1 s lodžií. Byt se nachází ve třetím patře sedmipatrového domu ve velmi pěkné, klidné a žádané lokalitě v ulici Pískovcová. Panelový dům je celkově zrekonstruovaný, a to zejména zateplení, fasáda, kvalitní plastová okna a stoupačky.
Byt prošel kompletní rekonstrukcí v moderním a nadčasovém stylu, kdy byl při úpravách kladen důraz na detail a vkusné materiály.
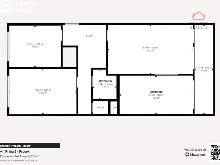
Pohodlí a soukromí zaručí prostorná předsíň se vstupy do všech místností, která je vybavena vestavěnými skříněmi, které poskytují velké množství úložného prostoru. Koupelna je vybavena masážním sprchovým koutem a pračkou. Samostatná toaleta zvyšuje komfort při každodenním užívání.
Dále se z předsíně vstupuje do dvou neprůchozích pokojů. Jeden pokoj slouží jako ložnice, která je vybavena dvoulůžkovou postelí a praktickým pracovním koutem a druhý pokoj je vhodný jako dětský pokoj a je v tuto chvíli nezařízený. Obývací pokoj je vybaven obývací stěnou a rohovou koženou sedací soupravou, která dodává místnosti elegantní vzhled. Na obývací pokoj navazuje kuchyň s moderní kuchyňskou linkou s LED podsvícením a vestavěnými spotřebiči a lednicí. Součástí kuchyně je jídelní stůl a další rohové posezení, které vytváří příjemný prostor pro stolování.
K bytu náleží prostorná lodžie a komora umístěná naproti bytu.
V blízkosti domu se nachází veškerá občanská vybavenost- nákupní centrum Billa, Kaufland, dále v docházkové vzdálenosti poliklinika Prosek, restaurace, kavárny, bobová dráha aj. V okolí je velké množství zeleně, Park přátelství, několik dětských hřišť a velké množství škol včetně středních. Autobusová zastávka i stanice metra C je přímo u domu. Velkou výhodou je velké parkoviště přímo před domem, kde je díky modrým zónám široký výběr parkovacích míst.
Celková cena: 30.000 Kč + za služby 4.500 Kč za 1. osobu, každá další + 1.200 Kč + elektřina přepsaná na nájemce.
Vratná kauce je 70.000 Kč, provize RK je ve výši jednoho měsíčního nájmu.
Vážní zájemci, prosím, kontaktujte nás emailem, obdržíte dotazník, na základě kterého si majitel vybere zájemce k prohlídkám. Majitel si vyhrazuje právo vybrat si nájemce podle svých představ. K nastěhování volné od 1. 3. 2026.
Byt prošel kompletní rekonstrukcí v moderním a nadčasovém stylu, kdy byl při úpravách kladen důraz na detail a vkusné materiály.
Pohodlí a soukromí zaručí prostorná předsíň se vstupy do všech místností, která je vybavena vestavěnými skříněmi, které poskytují velké množství úložného prostoru. Koupelna je vybavena masážním sprchovým koutem a pračkou. Samostatná toaleta zvyšuje komfort při každodenním užívání.
Dále se z předsíně vstupuje do dvou neprůchozích pokojů. Jeden pokoj slouží jako ložnice, která je vybavena dvoulůžkovou postelí a praktickým pracovním koutem a druhý pokoj je vhodný jako dětský pokoj a je v tuto chvíli nezařízený. Obývací pokoj je vybaven obývací stěnou a rohovou koženou sedací soupravou, která dodává místnosti elegantní vzhled. Na obývací pokoj navazuje kuchyň s moderní kuchyňskou linkou s LED podsvícením a vestavěnými spotřebiči a lednicí. Součástí kuchyně je jídelní stůl a další rohové posezení, které vytváří příjemný prostor pro stolování.
K bytu náleží prostorná lodžie a komora umístěná naproti bytu.
V blízkosti domu se nachází veškerá občanská vybavenost- nákupní centrum Billa, Kaufland, dále v docházkové vzdálenosti poliklinika Prosek, restaurace, kavárny, bobová dráha aj. V okolí je velké množství zeleně, Park přátelství, několik dětských hřišť a velké množství škol včetně středních. Autobusová zastávka i stanice metra C je přímo u domu. Velkou výhodou je velké parkoviště přímo před domem, kde je díky modrým zónám široký výběr parkovacích míst.
Celková cena: 30.000 Kč + za služby 4.500 Kč za 1. osobu, každá další + 1.200 Kč + elektřina přepsaná na nájemce.
Vratná kauce je 70.000 Kč, provize RK je ve výši jednoho měsíčního nájmu.
Vážní zájemci, prosím, kontaktujte nás emailem, obdržíte dotazník, na základě kterého si majitel vybere zájemce k prohlídkám. Majitel si vyhrazuje právo vybrat si nájemce podle svých představ. K nastěhování volné od 1. 3. 2026.
Other parameters
- long-distance water supply
- underfloor heating
- central heating
- central district heating
- Vodafone
- internet
- Yes
- 2
- 7 m2
- central remote
- pipeline
- public sewer
- 4
- č. 264/2020 Sb.
- 230V
- 1 m2
- 3
- After reconstruction
- Panel
- D - Less efficient
- cooperative
On this website we process cookies necessary for its operation and analysis.