Sale family house 104 m², land 675 m²
Bernartice

5 500 000 for property
Contact:Nikola Janoušková E-mail:Telefon:739700600
By clicking you agree to ours

Description

Nabízíme k prodeji zateplený patrový kamenný dům v klidné části obce Svatkovice u Bernartic, který díky skvělé orientaci působí velmi slunně a příjemně. Obec se nachází přibližně 20 km od Písku.

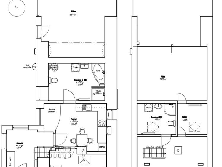
Celková plocha pozemku činí 675 m². Dům má dispozici 2+1 a užitnou plochu 104 m² s možností rozšíření o další dva pokoje (jeden v přízemí a druhý v podkroví) a navýšení užitné plochy o dalších cca 54 m². V přízemí se nachází prostorná předsíň, obývací pokoj, kuchyň a koupelna s vanou, sprchovým koutem a WC. V patře je velká obytná místnost, další menší pokoj a druhá koupelna s toaletou.

Vytápění celého domu zajišťují krbová kamna na dřevo s výměníkem a rozvodem do radiátorů, která kromě úsporného provozu vytváří i příjemnou atmosféru v obývacím pokoji. Nemovitost je napojena na elektřinu, odpad je řešen domácí ČOV na pozemku a voda je ze studny, přičemž v obci je plánovaná výstavba veřejného vodovodu.

Dům je osazen plastovými okny s izolačním dvojsklem, je zateplen (cca 10 cm minerální vaty) a energetická náročnost budovy je ve třídě B, což zaručuje nízké provozní náklady.
K domu náleží slunná okrasná zahrada o rozloze 550 m² s prostorným altánkem s krbem (cca 6,5 × 3,6 m) a bazénem, která je díky své poloze a okolnímu krytí velmi soukromá – působí „uzavřeně“ ze všech stran a nabízí tak ideální místo pro nerušený relax, rodinné posezení i zázemí pro volný čas. Parkování je možné před domem i po vjezdu velkou bránou na pozemek.

Velkou výhodou je právě potenciál budoucího rozšíření – v obou podlažích lze vytvořit další pokoje (orientačně až cca 54 m²). K dispozici máme i návrhy úprav dispozice a 3D vizualizaci, které ještě více propojí bydlení se zahradou a posunou nemovitost směrem k nadčasovému modernímu stylu.

V případě zájmu o bližší informace či prohlídku nás neváhejte kontaktovat.

Other parameters

  • underfloor heating, wood-burning stove
  • wood-burning stove
  • electric water heater
  • Dug well
  • road, bus
  • internet
  • asphalt
  • No
  • 4
  • 4
  • septic tank
  • 550 m2
  • 2
  • č. 264/2020 Sb.
  • 230V
  • 126 m2
  • 17 m2
  • 675 m2
  • Very good
  • Stone
  • B - Very efficient
  • Show building energy performance certificate
On this website we process cookies necessary for its operation and analysis.

Upozornění

Používáte nepodporovaný (zastaralý) internetový prohlížeč!

Pro správný běh našeho portalu není možné použít vámi používaný prohlížeč.

Použijte prosím Microsoft Edge nebo některý z jiných prohlížečů, např. Google Chrome, Firefox.