Sale restaurant 377 m², land 577 m²
Radnice, Pivovarská 64










































Description
Hledáte nemovitost, která je víc než jen restaurace? Místo, které vás chytne za srdce, nabídne hotový provoz i prostor k dalšímu rozvoji? V samém srdci Radnic, na náměstí Kašpara Šternberka, na vás čeká La Boema – výjimečný dům s charismatem, kulturní duší a silným příběhem.
Co nabízí v současné podobě:
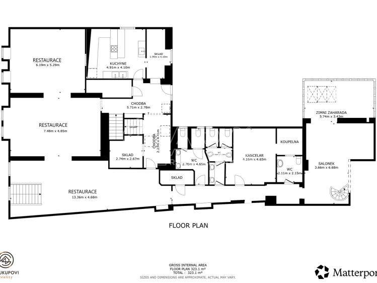
- Stylovou restauraci s kavárenským prostorem a salonkem
- Celkovou užitnou plochu restaurace a zázemí: 290 m²
- Kapacitu až 80 míst, plně vybavenou kuchyni, technické zázemí
- Kompletní rekonstrukce objektu pro účely restaurace byla kolaudována v roce 2010.
- Podkroví: nedokončená bytová jednotka 3+kk (užitná plocha 87 m²)
- Členitý a prostorný sklep
- Součástí je také garáž
- Zkušený personál, který může v případě dohody pokračovat ve své práci
Dům č. 64 je usazený v historickém jádru města – a každý jeho kout dýchá atmosférou literárních večerů, koncertů i výtvarných výstav. Z exteriéru se otevírá krásný výhled na náměstí, který láká k posezení nebo ranní kávě.
Parkování je možné přímo před objektem, na prostorném veřejném parkovišti.
V roce 2012 získal projekt rekonstrukce restaurace La Boema Mimořádnou cenu veřejnosti v soutěži "Stavba roku Plzeňského kraje".
Možné budoucí využití nemovitosti:
- Pokračování v provozu stylové restaurace s kavárnou
- Přestavba na jiný typ komerčního provozu – kanceláře, ateliér, showroom
- Rodinné bydlení či investice až se třemi samostatnými bytovými jednotkami
- Kombinace podnikání a soukromého bydlení
Lokalita:
Radnice jsou klidné město v Plzeňském kraji s přibližně 1 800 obyvateli a výbornou dostupností do Rokycan, díky obchvatu Oseku u Rokycan jste např. u Prazdroje v Plzni za 20 min., stejně tak dojezd do Prahy je slušný (dálnice D5). Veškerá občanská vybavenost v místě.
Proč právě La Boema?
Protože je to prostor s příběhem, duší a výjimečnou atmosférou. Investice, která nabízí mnohem víc než jen zdi – přináší emoci, identitu a silný potenciál do budoucna.
Energetický průkaz budovy se vypracovává, proto uvádíme nejhorší třídu G.
Zavolejte si o bližší informace nebo rovnou domluvte prohlídku.
Těším se na vás právě tady, v La Boemě.
Co nabízí v současné podobě:
- Stylovou restauraci s kavárenským prostorem a salonkem
- Celkovou užitnou plochu restaurace a zázemí: 290 m²
- Kapacitu až 80 míst, plně vybavenou kuchyni, technické zázemí
- Kompletní rekonstrukce objektu pro účely restaurace byla kolaudována v roce 2010.
- Podkroví: nedokončená bytová jednotka 3+kk (užitná plocha 87 m²)
- Členitý a prostorný sklep
- Součástí je také garáž
- Zkušený personál, který může v případě dohody pokračovat ve své práci
Dům č. 64 je usazený v historickém jádru města – a každý jeho kout dýchá atmosférou literárních večerů, koncertů i výtvarných výstav. Z exteriéru se otevírá krásný výhled na náměstí, který láká k posezení nebo ranní kávě.
Parkování je možné přímo před objektem, na prostorném veřejném parkovišti.
V roce 2012 získal projekt rekonstrukce restaurace La Boema Mimořádnou cenu veřejnosti v soutěži "Stavba roku Plzeňského kraje".
Možné budoucí využití nemovitosti:
- Pokračování v provozu stylové restaurace s kavárnou
- Přestavba na jiný typ komerčního provozu – kanceláře, ateliér, showroom
- Rodinné bydlení či investice až se třemi samostatnými bytovými jednotkami
- Kombinace podnikání a soukromého bydlení
Lokalita:
Radnice jsou klidné město v Plzeňském kraji s přibližně 1 800 obyvateli a výbornou dostupností do Rokycan, díky obchvatu Oseku u Rokycan jste např. u Prazdroje v Plzni za 20 min., stejně tak dojezd do Prahy je slušný (dálnice D5). Veškerá občanská vybavenost v místě.
Proč právě La Boema?
Protože je to prostor s příběhem, duší a výjimečnou atmosférou. Investice, která nabízí mnohem víc než jen zdi – přináší emoci, identitu a silný potenciál do budoucna.
Energetický průkaz budovy se vypracovává, proto uvádíme nejhorší třídu G.
Zavolejte si o bližší informace nebo rovnou domluvte prohlídku.
Těším se na vás právě tady, v La Boemě.
Other parameters
- long-distance water supply
- underfloor heating
- gas condensing boiler, wood-burning stove
- gas condensing boiler
- train, road, mhd, bus
- internet, cable distribution
- 3 phase
- asphalt
- No
- pipeline
- public sewer
- 1
- 2
- č. 264/2020 Sb.
- 230V
- 577 m2
- Very good
- Brick
- G - Extremely inefficient
On this website we process cookies necessary for its operation and analysis.