Rent apartment 2+KK 63 m²
Praha, Krásova
+ fees, landlord's deposit and real estate agent's commission
- This description is in:



























Description
- This description is in:
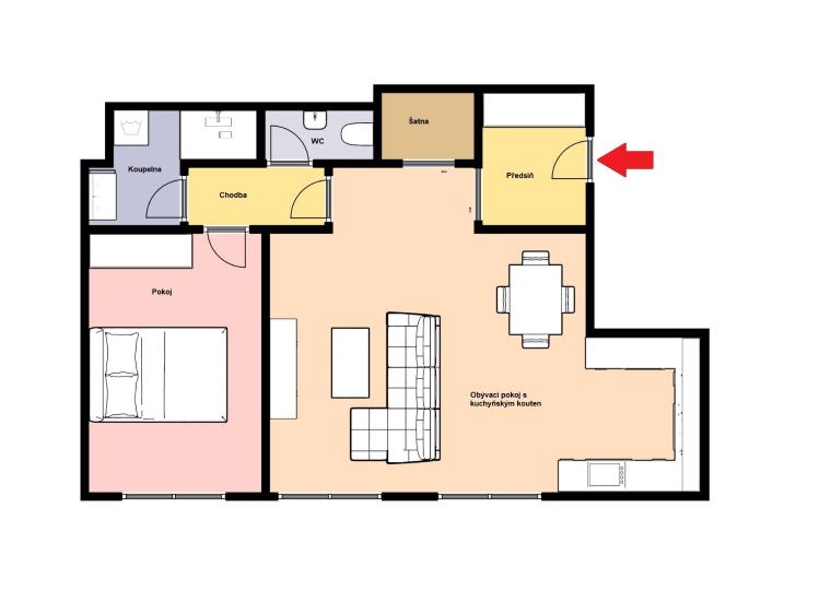
New luxury apartment 2+kk (62.59 m2) + cellar (11 m2) + garage, in the Viktoria Center residential project on the corner of Seifertova and Krásova streets, Prague 3. The apartment is partially furnished, in the photo gallery you will find three visualizations that serve to give you a better idea of how the apartment can look after furnishing.
The Viktoria Center project represents a unique combination thanks to its location on the border of the historic city center and thanks to its original architectural solution.
The apartment has top standards of equipment and execution, such as: ventilation, underfloor heating, wooden French windows (triple-glazed), Laufen Pro sanitary ware including overhead and bidet showers, home video phone, security door plus fire alarm, etc. The apartment is supplied with optical cable (CZ.net) and coaxial cable (Vodafone).
The apartment is partially furnished. Layout: entrance hall, bathroom 4.7 m2 (double sink with cabinet, shower, heating ladder, place for washing machine and dryer), separate WC (toilet, sink, shower), cozy bedroom 14.13 m2 and large living room 30, 33 m2 with a spacious dressing room and kitchenette, the new kitchen is richly equipped (fridge with freezer, induction hob + built-in convection oven with grill, dishwasher, built-in microwave oven, hood).
The convenience of living is enhanced by the Lidl supermarket, the Teta drugstore, but also a bistro with homemade pasta, a popular flower shop or perhaps an ATM and other services, all right on the premises.
A garage for one car is only 15 m from the apartment. The tram stop is right in front of the residence, the center of Prague 1.5 km. A lot of greenery and parks are located nearby - Riegrovy sady, Vítkov and Parukářka parks.
The apartment is available within two weeks of making the reservation. The lessor reserves the right to select the lessee based on the criteria chosen by him.
The Viktoria Center project represents a unique combination thanks to its location on the border of the historic city center and thanks to its original architectural solution.
The apartment has top standards of equipment and execution, such as: ventilation, underfloor heating, wooden French windows (triple-glazed), Laufen Pro sanitary ware including overhead and bidet showers, home video phone, security door plus fire alarm, etc. The apartment is supplied with optical cable (CZ.net) and coaxial cable (Vodafone).
The apartment is partially furnished. Layout: entrance hall, bathroom 4.7 m2 (double sink with cabinet, shower, heating ladder, place for washing machine and dryer), separate WC (toilet, sink, shower), cozy bedroom 14.13 m2 and large living room 30, 33 m2 with a spacious dressing room and kitchenette, the new kitchen is richly equipped (fridge with freezer, induction hob + built-in convection oven with grill, dishwasher, built-in microwave oven, hood).
The convenience of living is enhanced by the Lidl supermarket, the Teta drugstore, but also a bistro with homemade pasta, a popular flower shop or perhaps an ATM and other services, all right on the premises.
A garage for one car is only 15 m from the apartment. The tram stop is right in front of the residence, the center of Prague 1.5 km. A lot of greenery and parks are located nearby - Riegrovy sady, Vítkov and Parukářka parks.
The apartment is available within two weeks of making the reservation. The lessor reserves the right to select the lessee based on the criteria chosen by him.
Other parameters
- train, mhd
- internet
- solar collectors
- 7
- 11 m2
- 2
- New building
- Brick
- B - Very efficient
- personal
On this website we process cookies necessary for its operation and analysis.