Pronájem bytu 1+1 36 m²
Kutná Hora, Ortenova 75












Popis
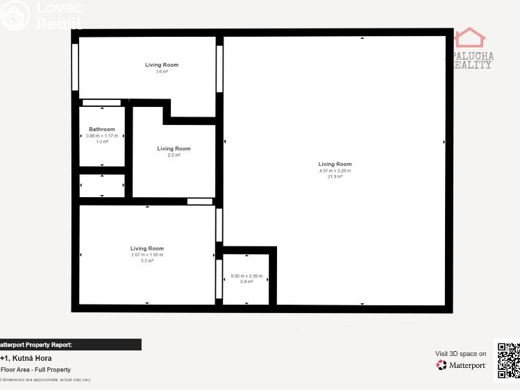
APALUCHA REALITY Vám exkluzivně nabízí k pronájmu prostorný a světlý byt 1+1 o celkové podlahové ploše 36 m², velmi dobře dispozičně řešený s výhledem do parku. Nachází se ve 2. patře panelového domu. Byt je umístěn v domě po revitalizaci, který je bez výtahu a má vlastní sklep. Kuchyň je samostatná, prostorná a disponuje zděnou spíží. Koupelna a WC jsou po rekonstrukci. Koupelna je přístupná z kuchyně a samostatné WC z chodby. Vytápění a ohřev teplé vody je dálkový. Byt je vhodný pro jednu až dvě osoby. PENB C.
Lokalita nabízí výbornou občanskou vybavenost v pěší dostupnosti jako jsou školky, školy, obchodní centra (Kaufland, Penny a Tesco), historické centrum města, parky, koupaliště a zimní stadion.
Měsíční nájemné je 12.000 Kč + cca 2.000 Kč poplatky + elektřina. Vratná kauce je 24.000 Kč, provize RK je jeden nájem, z nějž polovinu hradí pronajímatel a polovinu nájemce. Vážní zájemci, prosím, kontaktujte nás emailem, obdržíte dotazník, na základě kterého si majitel vybere zájemce k případným prohlídkám. Majitel si vyhrazuje právo vybrat nájemce podle svých představ. K nastěhování ihned.
Další parametry
- vodovod
- radiátory
- ústřední dálkové
- vlak, silnice, bus
- asfaltová
- 2
- plynovod
- veřejná kanalizace
- 3
- č. 264/2020 Sb.
- 230V
- 2
- Dobrý
- Panel
- C - Úsporná
- osobní
- Zobrazit průkaz energetické náročnosti budovy
- Ano